first image
'grow ' by apollo architects & associates
image ? masao nishikawa
?
situated on an extremely small plot measuring only 65 sqm, 'grow' by apollo architects & associates is a downtown tokyo residence conceived
for a husband-and-wife designer couple.
on the ground floor, a cockpit-like office at the entrance which runs along the east side of the home, neighbors the garage,
separated by a single pane of glass which visually expands the narrow space. when the garage is open to its fullest extent,
it creates a sense of unity between the street and interior. a small square white rock covered courtyard located at the back left corner
of the garage fills with diffused light which floods down from the upper levels, projecting a sense of tranquility into the adjoining master bedroom.
a staircase which spirals from the ground floor to the penthouse leads upwards to the second floor outfitted with a large changing room
and sleeping quarters for the client's three children - this area is divided by a curtain. two large doors which open out over the courtyard
from the bathroom allow one to enjoy a relaxing 'outdoor' bath complete with fresh air and sunlight.
the third floor floor houses the dwelling's main communal areas such as the kitchen and living room. high skylights installed along the walls
and the ceiling - which is sloped as a result of the setback limit imposed by the city - provide a lot of natural light into the home,
making it feel open and airy despite its small area. these windows also offer panoramic views of the sky and downtown area with built-in furniture
covered in tatami mats lining the south and east facing walls of the family room. a balcony extends from the kitchen where the residents
are able to grow their own plants, allowing them to prepare food in an open environment, while a rooftop garden offers an additional green oasis
for the owners in the middle of the city.
?
?

the compact site measures 65 sqm
image ? masao nishikawa
?
?
?

the third floor family room features built-in furniture covered in tatami mats
image ? masao nishikawa
?
?
?

north facing view of the third floor which features sloping ceilings as a result of the city's setback limits
image ? masao nishikawa
?
?
?

east facing wall
image ? masao nishikawa
?
?
?

general view of the third floor kitchen and family room
image ? masao nishikawa
?
?
?

a door in the kitchen opens to a balcony where the owners can grow plants
image ? masao nishikawa
?
?
?

a green roof offers an urban oasis for the residents
image ? masao nishikawa
?
?
?

a spiral staircase leads from the ground floor all the way to the top of the home
image ? masao nishikawa
?
?
?
?

second floor bathroom
image ? masao nishikawa
?
?
?

large doors from the bathroom which open over the courtyard offer an environment in which to have an outdoor bath.
image ? masao nishikawa
?
?
?
?

a long narrow office neighbours the garage, separated by a pane of glass
image ? masao nishikawa
?
?
?
?

view into the garage from the street
image ? masao nishikawa
?
?
?
?

garage and office space by night
image ? masao nishikawa
?
?
?
?

'grow' by night
image ? masao nishikawa
?
?
?

third floor lighting by night
image ? masao nishikawa
?
?
?

first floor plan
?
?
?

second floor plan
?
?
?

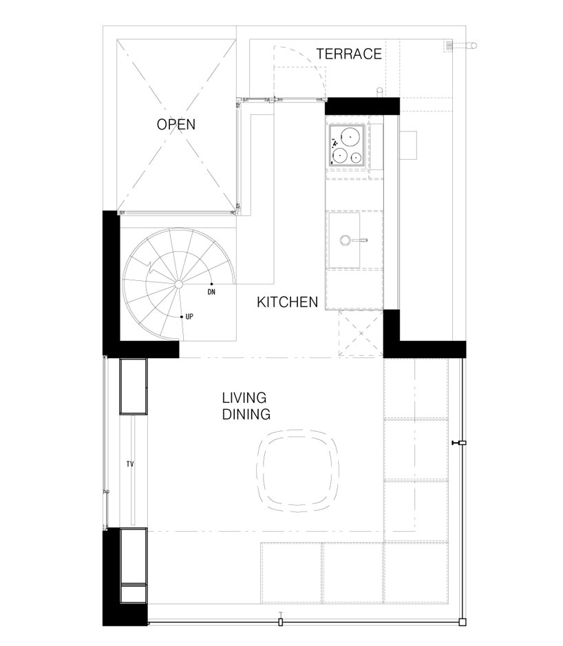
third floor plan
?
?
?

penthouse
?
?
?

section
?
?
?

section
?
?
?

south and east elevation
?
?
?
?

north and west elevation
?
?
project outline
?
architecture: satoshi kurosaki/apollo architects & associates
location: shinjuku ward tokyo
date of completion: july 2012
principal use: private housing
structure: concrete
site area: 38.37m2
total floor area: 124.33m2 (43.61m2/1f, 38.37m2/2f,38.66m2/3f,3.69m2/ph)
structural engineer: kenta masaki
mechanical engineer: zenei shimada
material information
exterior finish: exposed concrete
floor: wood flooring
wall: synthetic resin emulsion paint
ceiling: exposed concrete
Cam Cameron RG3 Ada Lovelace 12/12/12 manny pacquiao Chopper Live Johnny Manziel
কোন মন্তব্য নেই:
একটি মন্তব্য পোস্ট করুন